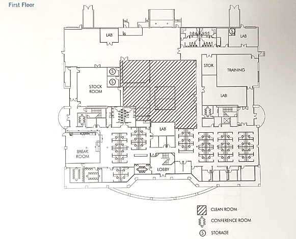
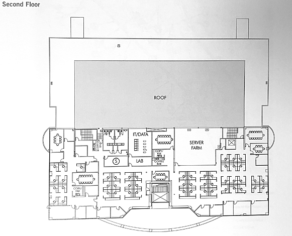
Available Suite Detail

3100 West Warren Ave Suite 1

Suite 1
Space Type: R&D
Space Available: 56958 sf
Price: 1.35 NNN sf

3100 West Warren Ave Suite 1, Fremont, CA 94538

  • Well located near Highway 880 ramp
  • Monument Signage
  • 3.5/1,000 parking
  • Across from Club Sport with numerous hotels nearby
  • 5,374 s.f. Class 100 cleanroom
  • 3,000 s.f. server room with 55 tons of HVAC
  • 2,000 amps @ 408 volts
  • 226 tons of cooling
  • 2 dock-high doors & 2 grade level doors
3100 West Warren Ave Suite 1
Suite 1 - 56958 SF
map

Need More Information

Give us a call: 408 354-5222

Or fill out this form to send us an email. We'll get back to you asap.